Feelman Weekly report
2017/04/13
内装進捗のご報告!《間仕切り》
sumiこんにちは、ピーターです!
今日は『朝日広尾マンション』の工事進捗の様子をレポートしたいと思います(^o^)
前回は解体の様子をレポートしましたが、本日は
間仕切り壁まで出来上がってあと少しで完成!
の様子を報告します。
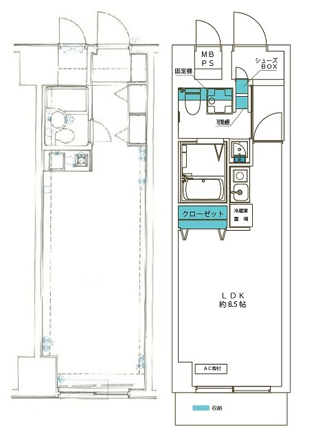
まずは当初の図面と完成後の間取り図になります。

《解体後》バルコニー側からみた室内
《間仕切り壁設置後》
《クロス張り後》
《解体後》玄関側からみた室内
《間仕切り設置後》
《クロス貼り後》
《床下配管 解体時》
《解体後》
新たに生まれ変わるお部屋の仕上りが今から気になりますよね~♫
それでは次回の更新もお楽しみに~!













